Vragen of extra informatie gewenst over dit pand?

Neem een kijkje in dit prachtige pand
Bijkomende informatie over het pand
Groede is een geliefd dorp met een karakteristieke dorpskern, gezellige horeca en een ontspannen sfeer. Binnen enkele minuten bereikt u het strand en de Zeeuwse polders, terwijl steden als Sluis, Brugge en Knokke eenvoudig bereikbaar zijn.
Indeling
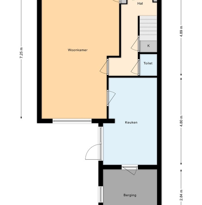
Begane grond
Via de entree betreedt u de woning, waar direct de lichte en open sfeer opvalt. De woonkamer is ruim en aangenaam licht dankzij de grote raampartijen. De houtkachel vormt een sfeervol middelpunt en zorgt voor extra warmte en gezelligheid tijdens de koudere maanden.
De woonkamer loopt vloeiend over in de eetruimte en de keuken, wat zorgt voor een moderne en open leefindeling. De keuken is strak uitgevoerd en praktisch ingericht met diverse inbouwapparatuur en voldoende werkruimte. Dankzij de lichtstraat geniet u hier van veel daglicht.
Aansluitend bevindt zich een bijkeuken met aansluitingen voor wasmachine en droger en extra bergruimte. Op de begane grond zijn tevens een toilet en kelder aanwezig.
Eerste verdieping
De overloop geeft toegang tot drie slaapkamers, allen met een prettige lichtinval en een rustige uitstraling. De twee slaapvertrekken aan de achterzijde zijn extra licht en ruim door de recent geplaatste brede dakkapel. De badkamer is verzorgd en voorzien van een douche, wastafel en tweede toilet.
Buitenruimte
De woning beschikt over een fijne buitenruimte met voldoende privacy. Direct achter de woning ligt een groen grasveld, wat zorgt voor een vrij en ruimtelijk gevoel. In de tuin bevindt zich een praktisch schuurtje met overkapping, perfect voor het opbergen van spullen en het creëren van een gezellige zitplek waar u ook bij minder mooi weer van buiten kunt genieten. Al het vroege voorjaar is het de uitgelezen plek om fijn buiten te zitten. De orientatie op het noordoosten biedt u 's zomers een aangename ochtendzon en 's middags de nodige verkoeling.
Bijzonderheden
Deze hoekwoning is gebouwd in 1955 en heeft een woonoppervlakte van circa 96 m² met een inhoud van ongeveer 419 m³. De woning beschikt over drie slaapkamers en is voorzien van twee toiletten. In de afgelopen jaren is er geïnvesteerd in het wooncomfort: zo is de complete cv-installatie vernieuwd in 2020 en is in hetzelfde jaar ook de elektra volledig opnieuw aangelegd. Hierbij is rekening gehouden met data bekabeling naar alle ruimtes inclusief het tuinhuis. Daarnaast zijn er in 2021 ook 6 zonnepanelen (2000 Wp) met omvormer geplaatst welke bijdragen aan lagere energielasten.
Kortom: een comfortabele en instapklare woning met een fijne indeling, veel licht en moderne voorzieningen, gelegen op een aantrekkelijke locatie in Groede. Zeker een bezichtiging waard!
Documenten als download beschikbaar
Contacteer ZwinRegio over dit pand
Laat je verrassen en bekijk dit pand virtueel
Ontdek alle andere panden






















































































