Avez-vous des questions ou avez-vous besoin d'informations supplémentaires sur cette propriété ?
Informations complémentaires sur la propriété
Aan Boulevard de Wielingen 59-65 wordt het nieuwe woonproject ‘C-Sight’ ontwikkeld in samenwerking met de ervaren projectontwikkelaars HPlus Vastgoed en Cordeel.
Het is ongetwijfeld de mooiste locatie van Cadzand: direct aan de jachthaven, met zicht op zee en land. Prijs is exclusief BTW en inclusief parkeervoorziening.
Ontdek de 23 appartementen, 3 penthouses, 7 woningen en 6 commerciële ruimtes die dit project omvat!
Natuurliefhebbers zullen zich hier meteen thuis voelen. Het adembenemende natuurgebied ‘Het Zwin’ en de ‘Verdronken Zwarte Polder’ liggen aan de voet van C-Sight en nodigen uit voor urenlang wandelgenot.
Met de mooie jachthaven van Cadzand in het zicht heeft C-Sight een extra troef in huis. Zonder overdrijving, want de meeste appartementen kijken op de nieuwe haven uit.
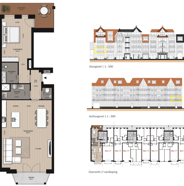
Het appartement wordt turnkey opgeleverd. De getoonde meubels zijn digitaal (AI) toegevoegd en dienen uitsluitend ter illustratie.
Contactez ZwinRegio à propos de cette propriété
Découvrez toutes les autres propriétés




















